Transformation et valorisation de locaux industriels

Ce bâtiment industriel du XXème siècle a subi des transformations successives. Il accueille actuellement une partie de logement et une partie artisanale. Situé au Sud-Est du village de Noiraigue, il se trouve dans une zone mixte, entre les voies de chemin de fer au Nord et une zone industrielle au Sud. Ce bâtiment était autrefois utilisé pour la fabrique de pierres fines et pièces de précision pour l’horlogerie et l’industrie, puis, après fermeture de l’entreprise, certains locaux ont été loués pour des activités diverses et variées.

Le bâtiment n’ayant subi aucune grosse rénovation, les installations techniques étaient complétement vétustes et les aménagements intérieurs en mauvais état. Le projet à donc pour but de remettre à jour et revaloriser ce lieu pour y accueillir de l’artisanat horloger.

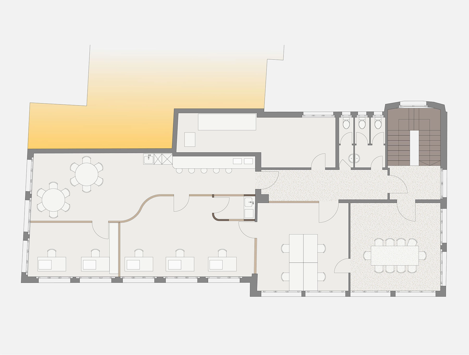
Rez-de-chaussée

Étage

“La lumière circule dans tout le bâtiment grâce aux grandes fenêtres existantes et aux nouvelles parois vitrées”

A l’intérieur, de nouvelles parois, vitrées sur la moitié de la hauteur, viennent diviser l’espace tout en laissant circuler la lumière. Certaines parties anciennes, comme la paroi neuchâteloise et l’ancienne porte de réception, sont conservées et dialoguent avec les nouveaux sols et parois. Le tout restant dans les mêmes tons afin d’harmoniser l’ensemble.

Un point clé du projet est de réussir à garder une hauteur suffisante sous plafonds afin d’accueillir des machines industrielles. De nouvelles poutres métalliques, renforçant la structure existante, difficultent cette tâche car la hauteur est limitée. Le faux-plafond est donc posé légèrement plus haut que ces dernières, ce qui les laissent apparaître, rythmant l’espace.

“La lumière circule dans tout le bâtiment grâce aux grandes fenêtres existantes et aux nouvelles parois vitrées”

A l’intérieur, de nouvelles parois, vitrées sur la moitié de la hauteur, viennent diviser l’espace tout en laissant circuler la lumière. Certaines parties anciennes, comme la paroi neuchâteloise et l’ancienne porte de réception, sont conservées et dialoguent avec les nouveaux sols et parois. Le tout restant dans les mêmes tons afin d’harmoniser l’ensemble.

Un point clé du projet est de réussir à garder une hauteur suffisante sous plafonds afin d’accueillir des machines industrielles. De nouvelles poutres métalliques, renforçant la structure existante, difficultent cette tâche car la hauteur est limitée. Le faux-plafond est donc posé légèrement plus haut que ces dernières, ce qui les laissent apparaître, rythmant l’espace.

Éclairage Rez-de-chaussée

Éclairage Étage

Prochain projet